TOPAZ ELITE - QUẬN 8
-
Bảng giá chi tiết
-
Căn hộ 2 Phòng ngủ2.55 tỷDiện tích: 78m2 gồm 2PN-2WC, nội thất cơ bản.
-
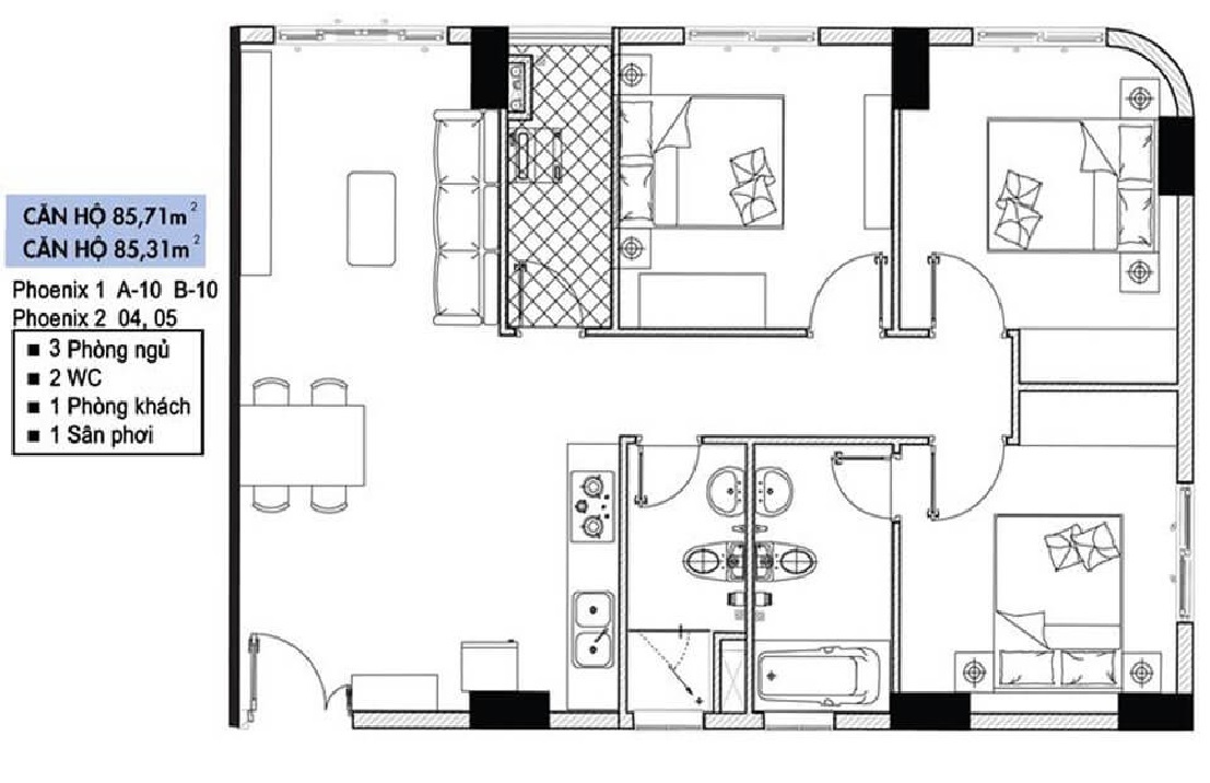
Căn hộ 3 Phòng ngủ3.1 tỷDiện tích: 91m2 gồm 3PN-3WC, nội thất cơ bản.
-
Căn hộ 2 Phòng ngủ (giá thuê)11.5 trDiện tích: 70m2 gồm 2PN-2WC, full nội thất .
-
Căn hộ 2 Phòng ngủ (giá thuê)8.5 trDiện tích: 73m2 gồm 2PN-2WC, nhà trống, rộng rãi.
-
Căn hộ 3 Phòng ngủ (giá thuê)10.5 trDiện tích: 93m2 gồm 2PN-2WC, nội thất cơ bản, không gian rộng rãi.
Dự án căn hộ Topaz Elite Quận 8 là viên ngọc quý nhất trong chuỗi ngọc Topaz của chủ đầu tư Vạn Thái Land, Topaz Elite có địa thế hoàn hảo khi nằm trong tổng thể dự án ven sông 16ha tiếp giáp 2 mặt tiền đường lớn Tạ Quang Bửu và Cao Lỗ, trung tâm Quận 8. Đây có thể coi là quỹ đất vàng hiếm hoi với tổng diện tích vào loại lớn nhất trong phạm vi 5km tính từ trung tâm thành phố. Thừa hưởng tiện ích ngoại khu hoàn hảo từ các quận lân cận, kết hợp với tiện ích nội khu đẳng cấp thượng lưu, cộng với giá bán vô cùng hấp dẫn, hứa hẹn sẽ là một dự án tuyệt vời và thu hút nhiều cư dân.

Mặt bằng dự án được chia thành 4 khu căn hộ cao cấp với 2339 sản phẩm. Các khối tòa nhà Topaz Elite được mang tên 2 linh vật cao quý Dragon Tower (Bảo Long tháp) – Phoenix Tower (Bảo Phụng tháp) với ý nghĩa thịnh vượng, may mắn, tài lộc và vị thế. Căn hộ tại Topaz Elite đều được chủ đầu tư thiết kế theo lối kiến trúc thanh lịch và cao cấp, tận dụng tối đa diện tích, mang đến cho khách hàng một không gian sống tuyệt vời và chất lượng. Nội thất trong mỗi căn được cunng cấp bởi các tương hiệu nổi tiếng nhất với chất lượng hoàn hảo, làm hài lòng mọi khách hàng. Với diện tích đa dạng từ 56.29m2 - 94.5m2 gồm từ 2-3PN thì khách hàng sẽ có nhiều sự lựa chọn để phù hợp với nhu cầu của mình.
- Căn 2 phòng ngủ: diện tích từ 56.29m2 - 78.95m2 có giá từ 2.250 tỷ/căn
- Căn 3 phòng ngủ: diện tích từ 85.15m2 - 94.5m2 có giá từ 3.100 tỷ/căn
Được đầu tư hệ thống tiện ích đẳng cấp, hiện đại nên cư dân ở đây sẽ được thừa hưởng một chuẩn mực sống xanh trong lành và thượng lưu bậc nhất. Một số tiện ích mang nổi bật ở đây như: hồ bơi tràn bờ chân mây, khu vườn thiền và khu trà đạo Nhật Bản, Sky bar San Fransisco, hệ thống giải trí trên cao, trung tâm thương mại đẳng cấp quốc tế Elite Mall cũng như dịch vụ ăn uống hấp dẫn. Bên cạnh đó, vì sở hữu vị trí đắc địa nên cư dân ở đây cũng sẽ dễ dàng tiếp cận với những tiện ích ngoại khu như: trung tâm hành chính, trường học, bệnh viện, chợ....
Công ty Cổ phần Thương mại Dịch vụ - Xây dựng Kinh doanh Nhà Vạn Thái được thành lập năm 1999, (tên thương hiệu Vạn Thái Land).
Trải qua hơn 18 năm phát triển bền vững, cho đến nay công ty đã xây dựng đội ngũ cán bộ nhân viên chuyên nghiệp, dày dặn kinh nghiệm, đầy nhiệt huyết và sáng tạo trong công việc. Bên cạnh đó, Vạn Thái Land mở rộng hợp tác với rất nhiều đối tác trong và ngoài nước có thế mạnh về tài chính, nhân lực, kinh nghiệm trong các dự án bất động sản tại Việt Nam.
Tầm nhìn:
Uy tín – chuyên nghiệp - thân thiện trong lĩnh vực đầu tư bất động sản luôn là hình ảnh công ty hướng đến.
Bằng khát vọng tiên phong cùng chiến lược đầu tư phát triển bền vững, Vạn Thái Land mong muốn trở thành công ty phát triển về bất động sản có tâm và có tầm tại thị trường Việt Nam - nơi mà khách hàng có thể an tâm trao gửi ước mơ về chốn an cư lạc nghiệp.
Sứ mệnh: Với sứ mệnh “Người xây tổ ấm” – Vạn Thái Land quyết tâm tạo dựng niềm tin, uy tín trong kinh doanh. Với đội ngũ lãnh đạo và nhân viên đầy tâm huyết, chuyên nghiệp, thân thiện nhiệt tình, năng động sáng tạo, các dự án đầy tiềm năng của công ty nhất định sẽ mang lại giá trị thiết thực và vượt hơn cả mong đợi cho khách hàng.
Căn hộ Topaz Elite tọa lạc, tại góc 2 mặt tiền đường Cao Lỗ – Tạ Quang Bửu, Phường 4, Quận 8, TP.HCM. Dự án được kết nối trực tiếp đến đại lộ Nguyễn Văn Linh và Võ Văn Kiệt, đến với Topaz Elite bạn sẽ dễ dàng tận hưởng những giá trị và tiện ích khu vực .
Từ dự án cư dân dễ dàng kết nối nhanh chóng các khu vực lân cận như: Quận 1, Quận 4, Quận 5 & Quận 7, Cư dân sẽ chỉ mất 10 phút để đi đến Quận 1, và Quận 5 qua cầu Nguyễn Tri Phương và Cầu chữ Y. Dự án có giá trị liên kết vùng cao đến các quận trung tâm thành phố như Quận 1, Quận 5, Đại Lộ Nguyễn Văn Linh đi Quận 7 và Bình Chánh, đại lỗ Võ Văn Kiệt đi Quận 6.
Hơn thế nữa, chỉ với 1,5 km là UBND Quận 8, Center Mall.2 km là Metro Bình Đăng, 3 km là tới KDC Trung Sơn, BV Nhiệt Đới, BV Đại học Y Dược, 3,5 km là tới Phú Mỹ Hưng, Bến Vân Đồn, Chợ An Đông.4 km tới Chợ Bến Thành, ĐH Rmit, hầm Thủ Thiêm. 5 km đến ngay UBND Thành phố.
- Cafe ốc đảo
- Trung tâm thương mại
- Hồ bơi nội khu
- Rạp phim
- Phòng tập GYM
